Nos preocupa tu privacidad En pisos.com utilizamos cookies propias y de terceros para dar un servicio satisfactorio mediante cookies técnicas, de personalización y para fines analíticos. pulsa AQUÍ para más información. Puedes aceptar todas las cookis pulsando el botón "aceptar" o configurarlas o rechazar su uso pulsando
Aceptar Rechazar todas Configurar
3.500 €/mes
Nave industrial en alquiler en San Agustín del Guadalix
San Agustín del Guadalix
3.500 €/mes
1 Baños
470 m2
  Imprimir
  Compartir
  Imprimir
  Compartir
 Llamar
 Contactar
Solicitar información del inmueble
 Contactar
Llámanos ahora
Descripción del inmueble
Navium alquila/vende taller mecánico con licencia, sin traspaso, en San Agustín del Guadalix.

SUPERFICIES:
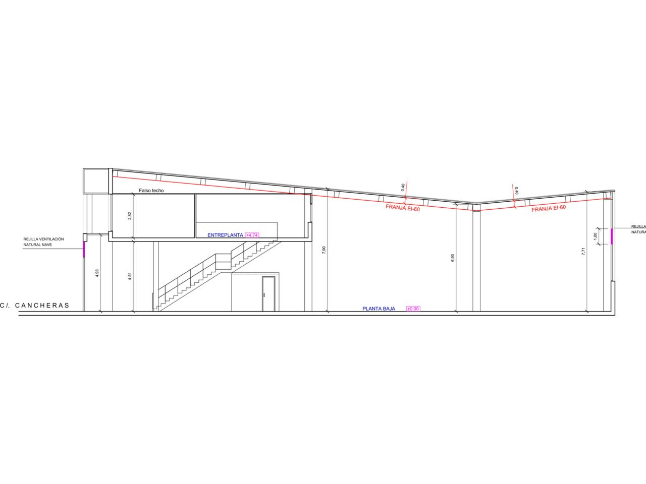
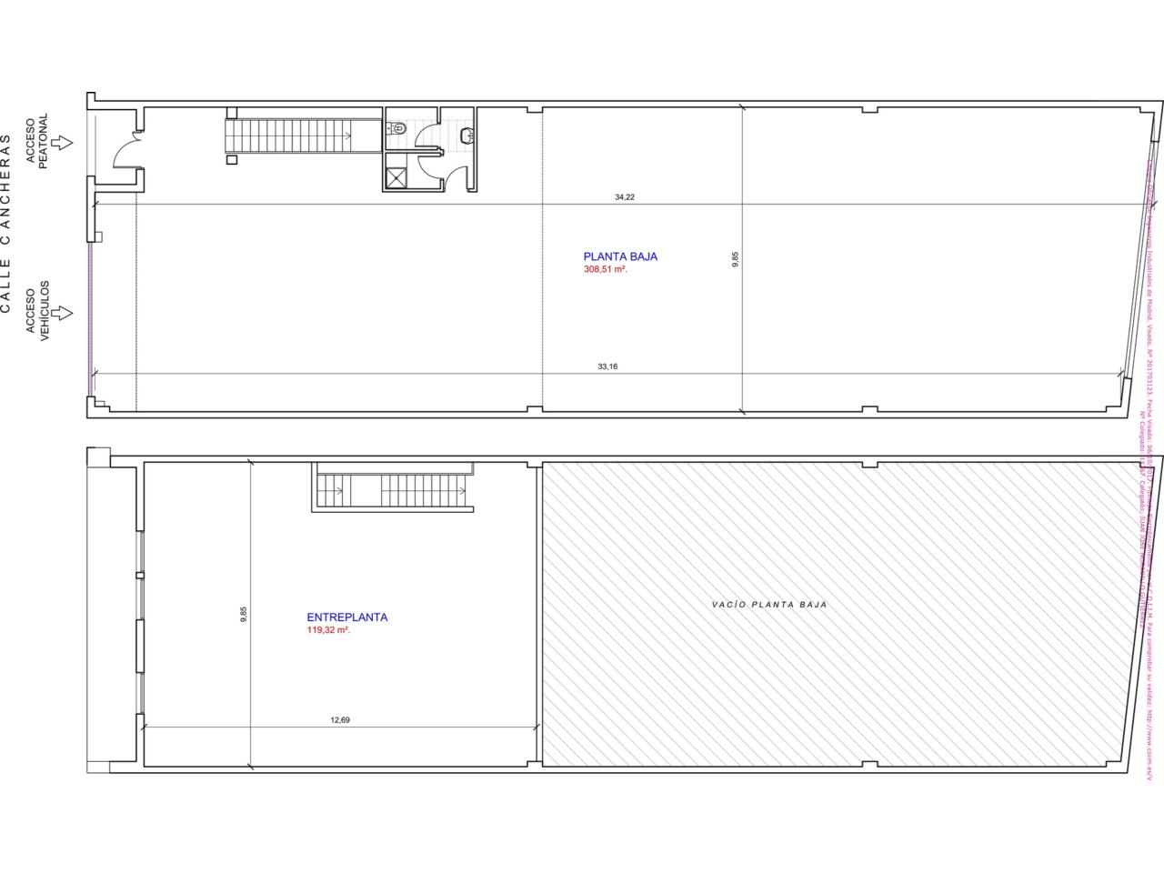
Planta baja de 340 m2 con una altura libre máxima de 8,50 m y mínima de 6,50 m.
Planta alta de 1...
Navium alquila/vende taller mecánico con licencia, sin traspaso, en San Agustín del Guadalix.

SUPERFICIES:
Planta baja de 340 m2 con una altura libre máxima de 8,50 m y mínima de 6,50 m.
Planta alta de 130 m2 completamente diáfana.
Dispone de plazas de aparcamiento en la misma calle.

CARACTERÍSTICAS:
Acceso a nave mediante portón TIR de 4,80*4.30 m.
Acceso peatonal independiente.
Estructura prefabricada de hormigón y cerramientos de paneles prefabricados de hormi-gón.
Cubierta de panel sándwich con lucernarios.
La planta alta se encuentra diáfana, con suelo técnico, para poder montar las oficinas con la distribución que se desee.
Dispone de los elementos e instalaciones habituales de un taller mecánico, con licencia de actividad vigente.
• 4 elevadores, uno en torre y los otros tres en suelo
• Instalación de fuerza repartida por la nave en cuadros secundarios
• Compresor de aire y tubería de reparto.
• Arqueta separadora de grasas
• Resto de elementos según fotografías
Instalaciones generales: acometida para bies contraincendios, franja perimetral corta-fuegos, centralita de incendios, alumbrado fluorescente, fuerza trifásica, baño con du-cha.
La nave tiene muy buenas calidades constructivas y se encuentra en un estado de con-servación excepcional.
No se cobra traspaso por la licencia de actividad ni las instalaciones interiores.

COMUNICACIÓN:
Situada junto a A1, en San Agustín del Guadalix, con entrada y salida muy directa y sin interrupciones.
www.ilnavium.com

Ver más
Características
  • Parking
  • Superficie útil: 470 m2
  • Referencia:A1-A6-185
Ver más
Localización
San Agustín del Guadalix
Clasificación: En trámite