Nos preocupa tu privacidad En pisos.com utilizamos cookies propias y de terceros para dar un servicio satisfactorio mediante cookies técnicas, de personalización y para fines analíticos. pulsa AQUÍ para más información. Puedes aceptar todas las cookis pulsando el botón "aceptar" o configurarlas o rechazar su uso pulsando
Aceptar Rechazar todas Configurar
79.836 €/mes
1.147 € (-1.44%)
Nave industrial en alquiler en San Fernando de Henares
San Fernando de Henares
79.836 €/mes
1.147 € (-1.44%)
4 Baños
11569 m2
  Imprimir
  Compartir
  Imprimir
  Compartir
 Llamar
 Contactar
Solicitar información del inmueble
 Contactar
Llámanos ahora
Descripción del inmueble
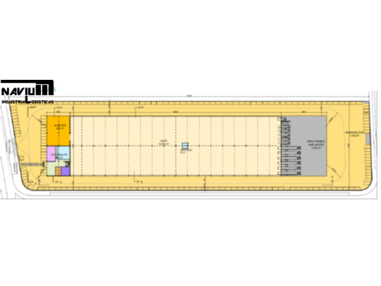
Superficie total 11569 m², nave industrial superficie solar 22238 m², superficie útil 11569 m², 4 aseos, ancho: 50 m, fondo: 200 m, alto: 10775 m, comedor, estado conservación: buen estado, muelle de carga (12 para ...
Superficie total 11569 m², nave industrial superficie solar 22238 m², superficie útil 11569 m², 4 aseos, ancho: 50 m, fondo: 200 m, alto: 10775 m, comedor, estado conservación: buen estado, muelle de carga (12 para trailers), nº de planta: 2, oficina (representativas para entrar), sistema anti-incendios (bies), puertas de acceso (34 uds para furgonetas (102 posiciones)), cubierta (sandwich), patio (de maniobras), estructura (prefabricada de hormigón).
Ver más
Características
  • Superficie solar: 22238 m2
  • Superficie útil: 11569 m2
  • Referencia:A2-A3-137
Ver más
Localización
San Fernando de Henares
Clasificación: En trámite